Douchewagen met zes douches

Dames / Heren Wastafel Douche Licht Veel mensen
  • Zes douches
Product omschrijving
Wij ontzorgen u van begin tot eind
  • Wij adviseren
  • Wij leveren
  • Wij REINIGEN
  • Wij ontzorgen
  • Wij halen op

Product omschrijving

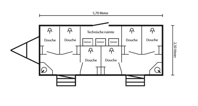
Een douchewagen met zes douches, verdeeld over twee ruimtes met drie douchecabines. Deze wagen beschikt over elektrische verwarming en wordt door middel van mechanische ventilatie geventileerd. Warm water wordt verkregen door badgeisers op propaangas. De wagen beschikt over een buffertank van 300 liter.

De wagen is 6,9m x 2,2m x 3,4m (L x Br x H)

Aandachtspunten

  • Vraag naar de beschikbaarheid

Hoe het werkt

Informatie over het bestelproces en onze producten

Wij adviseren en plannen

Wilt u een toiletcontainer huren dan helpen onze ervaren TOI TOI & DIXI-experts u graag op weg. Zij brengen uw wensen, behoeften en de situatie in kaart en zorgen voor een advies op maat. Natuurlijk zorgen we ook voor het leveren en afhalen van de container en de benodigde eindschoonmaak.

WIJ LEVEREN EN HALEN OP

Wij leveren onze containers op de gewenste locatie, plaatsen deze volgens de gestelde eisen en halen ze uiteraard ook weer op. U kunt rekenen op een betrouwbare service. Wij houden ons aan de afspraken die we met elkaar maken.

MONTAGE- EN VERBINDINGSWERKZAAMHEDEN

TOI TOI & DIXI biedt u alle service die u nodig heeft. Van professionele montage van aansluitingen voor water, riolering en elektriciteit tot demontage. Wilt u de containers uitbreiden, ombouwen of laten inrichten? Wij regelen het.

Uw gebruiksbehoeftes

Onze oplossingen voor uw behoeftes

We helpen u graag verder

Vragen en antwoorden over onze producten, diensten en online verhuur

Hotline 078 - 64 24 000 Contactformulier Contactformulier Vestigingen Vestigingen